
life with theater & books
仕様・コーディネート
🏆 LIXIL MEMBERS CONTEST 2022 敢闘賞 🏆
2022年春に発売された「住まいのリフォーム&リノベーションがまるごとわかる本」の表紙になりました。
2022年秋に発売された「日本一わかりやすい住まいの選び方がわかる本」に掲載されました。
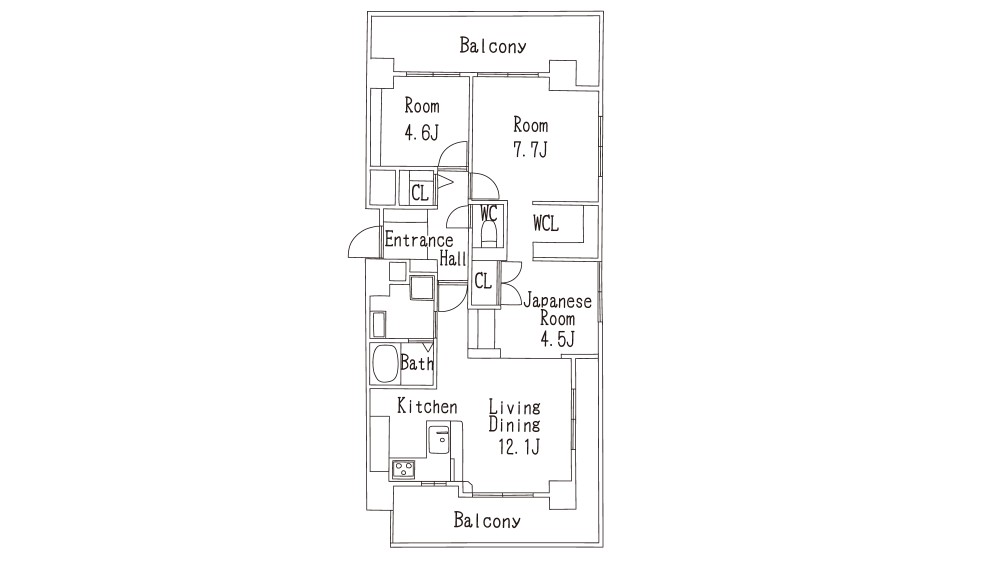
フルリノベBOX モデルルーム仕様
参考価格 1,000万円(税別)
参考支払 26,784円/月 LINE UP 参照
間取り 3LDK
面積 69㎡/20.90坪
不動産 中古マンション購入
玄関ドア 既存のまま
窓 既存のまま
キッチン LIXIL shiera S
ユニットバス LIXIL リノビオV
洗面 LIXIL ミズリア
トイレ LIXIL アメージュZ
ドア LIXIL ラシッサD
床 LIXIL ラシッサD
造作棚 無垢オーク
天井 sangetu クロス
壁 sangetu クロス
照明 ダウンライト
TV 壁掛け
給湯 ガス
家具 Home Reception Design Select
カーテン Home Reception Design Select
ご相談内容
HPからお問合せをいただいたK様。自ら「本の虫」とおっしゃる程、本が大好き。映画も好き。趣味を楽しむ新居を求めて、物件さがしに興味を持ったことがご来店のきっかけでした。
小説、コミック、映画パンフレット、DVD、小物類...etc収納できる間取りもご希望でした。ちょっとしたPC作業ができる作業スペースが寝室にあればいいなぁ。。
ちょうど当社が、K様ご希望の場所でモデルルームを計画していたマンションがありましたので、こちらをご購入いただき、リノベーションいただくことになりました。
担当者コメント
マイホーム取得おめでとうございます。
打合せの時から何をどこに置こうか、楽しみながらプランニングされ、造作家具満載の特別な空間になりましたね。ミントグリーンのアクセントクロスや飾り棚のマットな質感のタイルなどかわいさも取り入れ、K様の個性がいいバランスで表現されてます。
リビング天井から降りてくるスクリーンに照明器具から映像を映し出す、シアターセットも暮らしを彩ります。本と共に暮らす、素敵なお家が完成しました。
Home Reception











